
1 序言
作為數控走心機的核心功能部件之一的滾動直線導軌副,要求其具有高精度、高剛度,可實現X、Y運動的結構,并且要求結構簡化微型。傳統的滾動直線導軌副(見圖1)是由1根導軌及1件滑塊組成的系統,導軌是支承導軌,安裝在支承件上,滑塊裝在移動件上,沿導軌作直線運動,僅可實現設備工作臺在1個軸向來回移動,與其垂直的另一個軸向無法移動。目前的設備普遍是通過增加聯接板,在聯接板的兩側分別裝有互相垂直的兩套導軌副,從而實現工作臺在互相垂直的兩個軸向來回移動。具有安裝及調試方便、設備構件結構簡單且制造成本低等優點,但同時需要有足夠的空間來布置,裝配精度直接影響整機的精度。
走心機最早起源于瑞士和德國,那時的走心機用于對軍工器械的精密加工,后來隨著工業的不斷發展,市場對于走心機的需求越來越大,走心機逐漸應用于民用產品的加工中。隨著現今技術的發展,走心機在國內也開始發展起來,并且一步步趕超一些國外的品牌。因此,廣東凱特開始研制一種十字交叉滾動直線導軌副,可廣泛應用于走心機行業,滿足走心機的使用要求。
2 十字交叉滾動直線導軌副結構
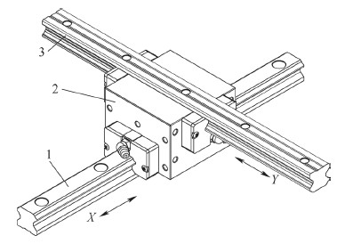
十字交叉滾動直線導軌副主要由X軸導軌、滑塊、Y軸導軌組成(見圖2)。行業標準中定義,直線導軌為橫截面具有特定形狀,有一條或多條縱向滾道供滑塊運動的導軌;滑塊是由滑塊體、返向器和密封件等組成的直線運動組件;滾動體為在滑塊與直線導軌之間作循環往復運動的滾珠或滾柱。

1—X軸導軌 2—滑塊 3—Y軸導軌
圖2 十字交叉滾動直線導軌副示意

圖3 十字交叉滑塊體示意
本文所描述的十字交叉導軌副同樣具有導軌、滑塊及滾動體。其中X軸與Y軸同時配置了兩根導軌,并且具有相同的橫截面。從圖3可見,滑塊體為長度及寬度相同的六面體,其中在4個側面分別設計有用于聯接安裝板的螺紋孔以及用于安裝返向器的螺紋孔,其余上下兩個面設計有互相垂直的兩組溝槽用于與導軌及滾動體配合滾動,可實現X、Y兩個方向同時移動。導軌、返向器及滾動體等零件與常規的同規格導軌副零件相同,可減少重新開發成本。為了實現不同品牌之間的導軌副互換,滑塊體的外形及安裝孔必須要按照現有的要求進行設計。
3 加工工藝
根據行業內及客戶的要求,滑塊六面體的垂直度誤差在每100mm為2μm之內,互相垂直的兩根導軌垂直度誤差最高等級要求在3μm以內。為滿足精度要求,如何加工滑塊六面體成為本導軌副研制成功的關鍵。
滑塊六面體工藝路線:粗銑六面體→精銑六面體→精銑溝槽→鉆安裝孔→淬火→精磨六面體→精磨溝槽。加工出來的產品主要存在垂直度及高度尺寸超差、加工效率低及合格率低等問題。垂直度超差主要由于分別單獨精磨六面體6個面時,需多次裝夾,產生誤差,同時加工效率也比較低。為此增加工裝夾具并同時磨削相鄰的兩個面,確保相鄰的3個面之間的垂直度分別在2μm以內。由于互相垂直的X軸及Y軸溝槽背對背地分布在六面體的兩側,精磨溝槽時需采用不同的基準面安裝進行磨削,為此在精磨X軸溝槽后對Y軸基準面進行磨削,保證滑塊體高度一致的前提下(一次裝夾)對Y軸溝槽進行磨削。通過工藝研究及改進工藝方案,產品加工精度及合格率得到提升。
4 工作原理

1—安裝底座 2—X軸導軌 3—螺釘 4—聯接板 5—滑塊 6—工作臺 7—Y軸導軌
圖4 XY平臺結構示意
針對本文介紹的十字交叉導軌副如何安裝及其工作原理,對XY平臺結構(見圖4)進行詳細說明。本平臺主要由十字交叉導軌副、安裝基座、聯接板、工作臺及螺釘組成,其中十字交叉導軌副包括2根X軸導軌、2根Y軸導軌及4件滑塊組成。X軸導軌采用螺釘固定在安裝基座上,滑塊采用螺釘與聯接板聯接在一起,Y軸導軌采用螺釘與工作臺聯接在一起。聯接板上在X軸向及Y軸向上分別布置有絲杠安裝座,當X軸絲杠驅動時可通過聯接板帶動滑塊在X軸向來回移動,同時滑塊帶動Y軸導軌及與Y軸導軌聯接在一起的工作臺,實現工作臺在X軸向來回移動;當Y軸絲杠驅動時可帶動Y軸導軌及與Y軸導軌聯接在一起的工作臺在Y軸向來回移動。當X軸及Y軸絲杠同時驅動時,可實現工作臺在X軸及Y軸同時來回移動。
5 性能測試

圖5 靜剛度測試對比
根據行業標準中的定義,靜剛度是指滾動直線導軌副抵抗變形的能力(單位變形所需要的載荷)。華中科技大學的方健等也研制了一種滾動直線導軌副靜剛度試驗臺,通過計算機來完成相關測試和控制。對于十字交叉導軌副其試驗方案大體相似,具體檢測數據如圖5所示。試驗采用本文所述的十字交叉導軌副及常規的直線導軌副進行靜剛度測試對比,通過測試數據可見,在相等規格、相同預緊力及相同的負載條件下,十字交叉導軌副的靜剛度較常規的直線導軌副提升13%左右。
6 結束語
簡單介紹了一種十字交叉滾動直線導軌副的結構、加工工藝試驗及改良方法,并通過測試靜剛度驗證。該導軌副具有精度高、剛度高的特點,具有雙向一體化結構,可實現工作臺在互相垂直的兩個軸向上任意移動。目前該導軌副已推出市場,并且在個別設備上得到應用驗證。
入駐:2026-02-23
入駐:2026-02-22
入駐:2026-02-22
入駐:2026-02-22
入駐:2026-01-14
舉辦:2026-03-26 至 2026-03-29
舉辦:2026-04-01 至 2026-04-03
舉辦:2026-03-11 至 2026-03-13
舉辦:2025-12-04 至 2025-12-05
舉辦:2025-11-13 至 2025-11-14